Original size 3503x4944

Проектирование интерьера в Revit

PROTECT STATUS: not protected
36

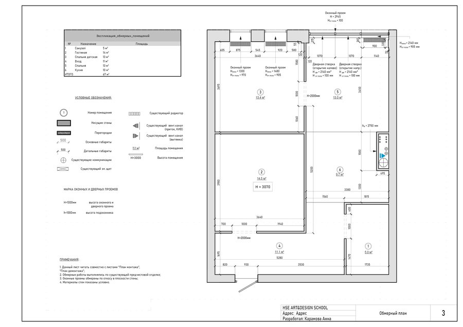
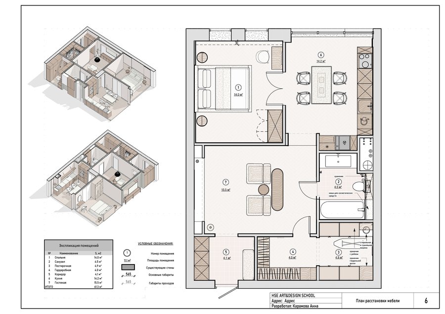
Дизайн-проект интерьера для квартиры, выполненный в REVIT.

Альбом чертежей содержит планы, а также развертки, 3D схемы и перспективные виды для гостиной, кухни и спальной.

big
Original size 3391x2398
0
0
Original size 3391x2398
Original size 3391x2398
Original size 3391x2398
Original size 4500x2535
Проектирование интерьера в Revit
36
We use cookies to improve the operation of the HSE website and to enhance its usability. More detailed information on the use of cookies can be fou...
Show more