

Exmo. Hotel in PORTO, PORTUGAL. Архитекторы Floret. 2019 год
1. Exmo. Hotel / Floret
Текстовое описание предоставлено архитекторами.
Реконструкция хронологии показывает, что на самом деле мы сталкиваемся не с одним зданием, а с двумя зданиями, которые превратились в одно здание. Первоначальное здание, возможно, было возведено в конце XIV или XV века. Конечно, оно могло быть возведено только после «открытия» Rua Nova, или Rua Formosa (ныне Rua do Infante), по приказу Д. Жуана I (1357-1433). В этот период «almadino» приобрел этот неоклассический фасад.
Exmo. Hotel in PORTO, PORTUGAL. Архитекторы Floret. 2019 год
В двадцатом веке пара Карлос Лоурейро и Падуа Рамос спроектировала модернистскую лестницу чрезвычайной элегантности. Когда дело дошло до нас, все, что нам нужно было сделать, это уважать все эти слои, которые достигли там замечательного равновесия. Это был банк. До этого было много вещей: офисы, страховые компании, склад. Чей-то дом в первые дни. Теперь это отель. Мы не знаем, что будет завтра.
Однако мы знаем, что кто бы ни пришел следующим, он продолжит узнавать эту временную линию в здании.
Exmo. Hotel in PORTO, PORTUGAL. Архитекторы Floret. 2019 год
2. Nine Hours Capsule Hotel / Naruse Inokuma Architects
Nine Hours Capsule Hotel in OSAKA, JAPAN. Архитекторы Naruse Inokuma Architects. 2019 год
Nine Hours Capsule Hotel in OSAKA, JAPAN. Архитекторы Naruse Inokuma Architects. 2019 год
Текстовое описание предоставлено архитекторами.
Этот проект создает новый стандарт для капсульных отелей. Бизнес-модель, называемая капсульным отелем, впервые появилась в Японии, специализируясь только на предложении дешевого проживания, а комфорт их мест размещения долгое время игнорировался. Таким образом, мы разработали совершенно новую форму капсульного отеля, которая переосмысливает свой традиционный образ и стремится к функциональности, одновременно обеспечивая насыщенный опыт пребывания.
Nine Hours Capsule Hotel in OSAKA, JAPAN. Архитекторы Naruse Inokuma Architects. 2019 год
Nine Hours Capsule Hotel in OSAKA, JAPAN. Архитекторы Naruse Inokuma Architects. 2019 год
Nine Hours Capsule Hotel in OSAKA, JAPAN. Архитекторы Naruse Inokuma Architects. 2019 год
В то же время мы перестроили 4 этапа пребывания в капсульном отеле в 4 сцены, включающие «ресепшн», «прологовый коридор», «санитарную комнату» и «спальную капсулу». Выбрав наиболее подходящие цвета, материалы и освещение для каждой из этих функций, мы смогли реализовать функциональный отель, который также богат радостями пребывания в отеле — от «приветствия» до «волнения», «расслабления» и «совершенного сна».
3. Hugo.Stay ― hostel
Hugo.Stay ― hostel. Архитекторы Apex Arhitektuuribüroo. 2019 год
Проект: Hugo.Stay — хостел Архитектура: Apex Arhitektuuribüroo Дизайнеры: Айво Арусаар, Инес Хаак (Ace of Space), Анна-Грете Консап Визуализация: Андрес Саарнак (Saarnak Visuals) Год: 2019
Hugo.Stay ― hostel. Архитекторы Apex Arhitektuuribüroo. 2019 год
Hugo.Stay ― hostel. Архитекторы Apex Arhitektuuribüroo. 2019 год
Hugo.Stay ― hostel. Архитекторы Apex Arhitektuuribüroo. 2019 год
4. XianXian Inn / penda
XianXian Inn in Dongcheng, China. Архитекторы penda. 2017 год
Отель был спроектирован на одну главную тему: «Возвращение воспоминаний». Хотя хутуны являются неотъемлемой частью «старого» Пекина, мы хотим, чтобы они служили культурным напоминанием о присутствии города. Архитектурное наследие и культура места формируются на протяжении столетий и должны быть постоянным ценным спутником в будущем развитии города.
XianXian Inn in Dongcheng, China. Архитекторы penda. 2017 год
Из-за отсутствия лифта клиент пожелал добавить номер на первом этаже для гостей, которым трудно ходить по лестнице. Находясь недалеко от железнодорожного вокзала Пекина и ключевых больниц, отель был и будет часто посещаем пожилыми туристами и пациентами издалека, ищущими лучшего лечения в столице.
XianXian Inn in Dongcheng, China. Архитекторы penda. 2017 год
XianXian Inn in Dongcheng, China. Архитекторы penda. 2017 год
5. Weflow Hostel / JH-Atelier
Weflow Hostel in Taiwan. Архитекторы JH-Atelier. 2018 год
Хостел Weflow расположен на углу квартала и северной стороны Внутреннего кольцевого виадука в Шанхае. Его задняя часть — это старый жилой комплекс. До реконструкции это был небольшой семейный отель в плохом состоянии, номера были в основном узкими, а половина номеров не имела окон. Первый этаж был кем-то арендован под склад. После того, как Weflow арендовал это здание, JH-Atelier выполнил проект реконструкции, чтобы превратить это здание в полнофункциональный хостел.
Weflow Hostel in Taiwan. Архитекторы JH-Atelier. 2018 год
Weflow Hostel in Taiwan. Архитекторы JH-Atelier. 2018 год
Weflow имеет два этажа, 1 -й этаж — это круглосуточная общественная «гостиная», которая открыта не только для гостей, но и для городской зоны; Второй этаж — это спальная зона, которая предназначена только для гостей хостела. Планировка второго этажа была полностью реорганизована. Все перегородки были удалены, а несущие стены сохранены; пространство вдоль внешней стены организовано как спальни, а ванные комнаты и душевые комнаты сосредоточены посередине. Все перегородки построены из стеклоблоков, чтобы гарантировать, что не только все спальни имеют дневной свет, но и центральная функциональная зона может получать перекрестный свет.
Weflow Hostel in Taiwan. Архитекторы JH-Atelier. 2018 год
Weflow — это разрез в городе. Он расположен в задней части Виадука. Вокруг него нет никаких вспомогательных объектов. На первый взгляд, в этом городском квартале слишком много маленьких шумных мастерских и логистических компаний. Это место с плохим коммерческим колоритом. Однако отремонтированный хостел Weflow преодолевает все эти препятствия с помощью своего простого современного дизайна и платформы OTA Интернета. После открытия хостел Weflow ежемесячно привлекает в этот квартал более 1000 человек, и большинство из них — молодые студенты в возрасте от 18 до 25 лет, среди которых много гостей из Гонконга, Макао, Тайваня и иностранцев.
Weflow Hostel in Taiwan. Архитекторы JH-Atelier. 2018 год
6. «A Room for Imagination» Hotel 1818 / Lina Ghotmeh Architecture
«A Room for Imagination» Hotel 1818 in Paris, France. Архитекторы Lina Ghotmeh Architecture. 2019 год
Это привело наше исследование к разработке «способного пространства», которое выражает желание и полезность. Вы можете приходить сюда на работу, встречаться, приветствовать людей или спать. Вы живете в нем со временем, либо временно, чтобы открыть для себя город, либо дольше, когда такое пространство становится продолжением вашего собственного дома. Это не комната, и не пространство, которое нужно собрать. Начиная с толщины его стен, вы определяете его функции; это настоящий ящик с инструментами для его временных обитателей.
«A Room for Imagination» Hotel 1818 in Paris, France. Архитекторы Lina Ghotmeh Architecture. 2019 год
Его стены, сделанные из дерева и покрытые натуральными волокнами, блокируют все звуки и открывают и скрывают функции и компоненты по требованию, от кроватей до шкафов, столов, стульев, душевых кабин и туалетов. Это жилое пространство, спроектированное как модульное, может быть быстро собрано и легко обслуживается и чистится.
Площадь комнаты составляет 24 кв. м, в ней нет излишнего декора; дизайн пространства — это декор. Окно широко открывается на город, а освещение встроено в стену. Задуманная в духе повторного использования, комната дает новую жизнь материалам, которые ее формируют: розовый пол в душе сделан из преобразованного песка, плитка в ванной комнате сделана из случайных узоров, созданных из различных переработанных материалов, тарелки сделаны из раковин мидий, постельное белье сделано из переработанного постельного белья. Приятно находиться в этом декарбонизированном пространстве, босые ноги касаются сырого земляного пола.
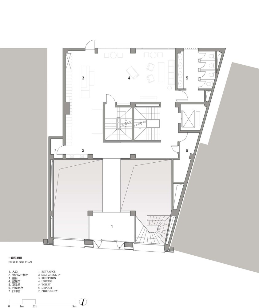
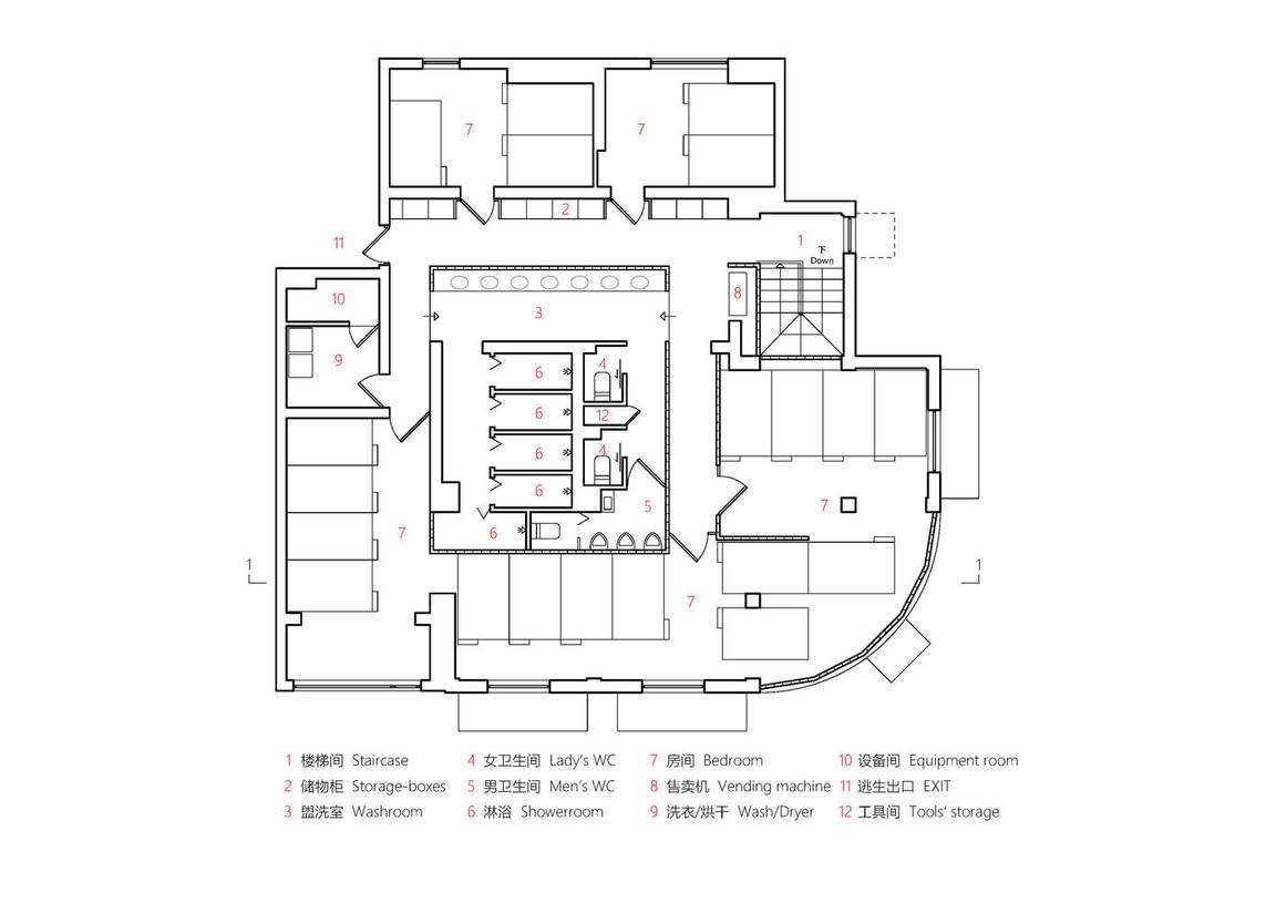
7. NEOBRIDGE Hotel / XING DESIGN
Отели, Реновация, Интерьеры отелей • Шанхай, Китай Архитекторы: XING DESIGN Область: 2100 м² Год: 2020 Фотографии: Шэнлян Су Производители: MATZ FORM Ведущий архитектор: Син Сюн
NEOBRIDGE Hotel in Shanghai, China. Архитекторы XING DESIGN. 2020 год
Текстовое описание предоставлено архитекторами. NEOBRIDGE — эксперимент по взаимодействию отеля и города. «Мост» — это тема и решение.
The Origin. Проект расположен в Цаоцзяду, Шанхай, с собором Святого Михаила спереди и жилым садом с видом на залив Сучжоу сзади. Наша цель — создать комфортное, но драматическое пространство между двумя высотными зданиями, сохранив при этом первоначальную массу и форму здания без изменений.
NEOBRIDGE Hotel in Shanghai, China. Архитекторы XING DESIGN. 2020 год
Проблемы оригинальной конструкции — низкая высота пола и репрессивный подвал. Поэтому мы открыли весь первый этаж, чтобы сформировать непрерывное вертикальное пространство с мостом в мосту. Под мостом находится внутреннее расширение города; напротив моста находится отель, на расстоянии от шума.
NEOBRIDGE Hotel in Shanghai, China. Архитекторы XING DESIGN. 2020 год
Таким образом, прогулка по мосту становится визуальным центром, ощущением ритуала, а также темой отеля.
NEOBRIDGE Hotel in Shanghai, China. Архитекторы XING DESIGN. 2020 год
Берег реки и водопад. Пространства и материалы выражены на основе истории «моста». Он предназначен для создания впечатления водопадного фасада в конкретном городском контексте. Навесная стена выполнена из стеклянных кирпичей, которые уравновешивают приватность и легкость.
NEOBRIDGE Hotel in Shanghai, China. Архитекторы XING DESIGN. 2020 год
«Водопад» проводится как через экстерьер, так и через интерьер, в котором различные материалы и отделки выражают различные состояния движения: падающая вода, под водой и на берегу. Течение воды также подразумевается в каждой комнате: стены ванных комнат выполнены из лазурной глазурованной плитки ручной работы и стекла с водяными знаками, отражающими мягкое движение реки на стенах.
Драма, практичность и строительство. Решение планировки комнат — это игра с существующими трубами и проводами. Чтобы достичь максимальной высоты пола, оригинальный бетон обнажен. Ванные комнаты и трубопроводы кондиционирования воздуха вставлены как встроенные коробки. Самое главное, что во всем здании нет ни одной жалюзи, поскольку все они скрыты в зазорах между материалами.
Стены-столпы на южном фасаде содержат два управляемых окна, которые специально спроектированы для поддержания полного вида падающей воды при открытии. Другие детали в комнатах включают отверстия на стене балкона и две комнаты с видом на мост, а также треугольное зеркальное окно, расширяющее визуальное восприятие крошечного пространства.
В отеле есть несколько удивительных деталей: зеркальное окно-перископ в самой темной комнате, отражающее внешний пейзаж; небольшие отверстия во двориках, где можно пожать руку соседям; полосатые окна, через которые можно заглянуть в бар и на мостик, и т. д.