
КОНЦЕПЦИЯ
Баланс ремесленного и современного. Контраст текстур и материалов создает интересные визуальные эффекты: игра света, теплота натурального дерева, динамика восприятия пространства при смене угла обзора и освещения.

ВИЗУАЛИЗАЦИИ

коридор // зона отдыха
В проекте коридоры становятся многофункциональным пространством. Они служат не только для перемещения, но и для работы, отдыха и общения.
Для экономии места здесь организованы компактные островки разных форматов:
/Тихий уголок для чтения с розетками для техники
/Кофе-поинт с зоной неформального общения
/Рабочие места вдоль подоконников
Широкие подоконники превращены в учебные и релакс-зоны. Такая организация позволяет эффективно использовать протяженное пространство коридора, создавая разнообразные сценарии для студентов.
коридор — зона отдыха // коворкинг // кофепоинт
компьютерный класс
лекторий
Стеклянная перегородка между лекторием и кураторской выполняет двойную функцию. В обычном режиме она обеспечивает визуальную связь между пространствами и максимальное проникновение естественного света.
Во время лекций и просмотров раздвижной экран позволяет полностью затемнить лекционную зону для комфортного восприятия контента. В остальное время прозрачная поверхность равномерно освещает оба помещения, создавая ощущение единого светового пространства.
Такое решение сочетает технологичность с эстетикой — перегородка работает как адаптивный элемент, который трансформируется в зависимости от сценария использования.


лекторий // 2 сценария использования перегородки
кураторская
мастерская
Мастерская решена как целостная монокомпозиция. Через стеклянные перегородки она воспринимается как единый деревянный блок с мебелью-трансформером. Главная задача — сохранить простор и многофункциональность, предоставив студентам свободу взаимодействия с пространством по их правилам.
Для этого разработана мебельная система, которая образует различные рабочие конфигурации. Дополнительно создано изолированное помещение для работ, требующих вытяжки и особых условий.
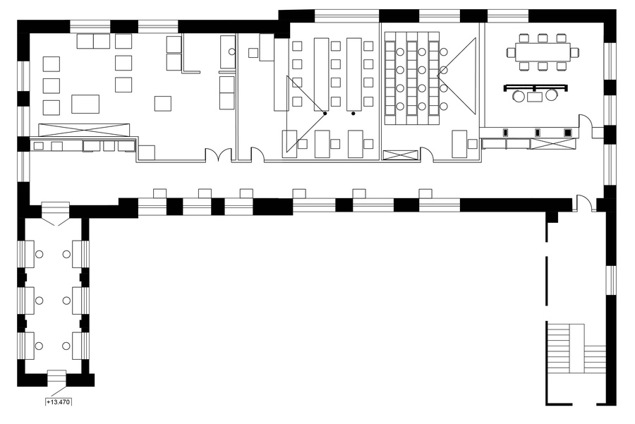
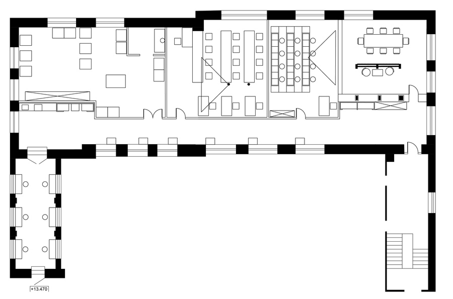
ПЛАН КЛАСТЕРА
план кластера вариации планировки // зонирование