
Гусевской хрустальный завод — старейшее предприятие, с которого началось развитие традиционного русского стеклоделия, его изделия имеют историческую и коллекционную ценность. Носит имя основателя — Акима Васильевича Мальцова. Он основал очередную «фамильную» стеклянную фабрику в 1756 году, выбрав место во Владимирском уезде Московской губернии, при сельце Никулине, в урочище Шиворово на реке Гусь. Отсюда и пошло название бренда.
Бренд нацелен на людей, которые ценят хрусталь, коллекционируют и готовы платить за премиум сегмент
Интерьер магазина хрусталя: - Светлое помещение, передающее ощущение воздушности как хрусталь - Хорошо подсвечиваемые стеллажи - Специальное место для новой коллекции - Спокойная уютная атмосфера

Материалы и цвета, используемые в интерьере

Ресепшн
Зал основной продукции
Экспонирование новой коллекции
Вход в магазин
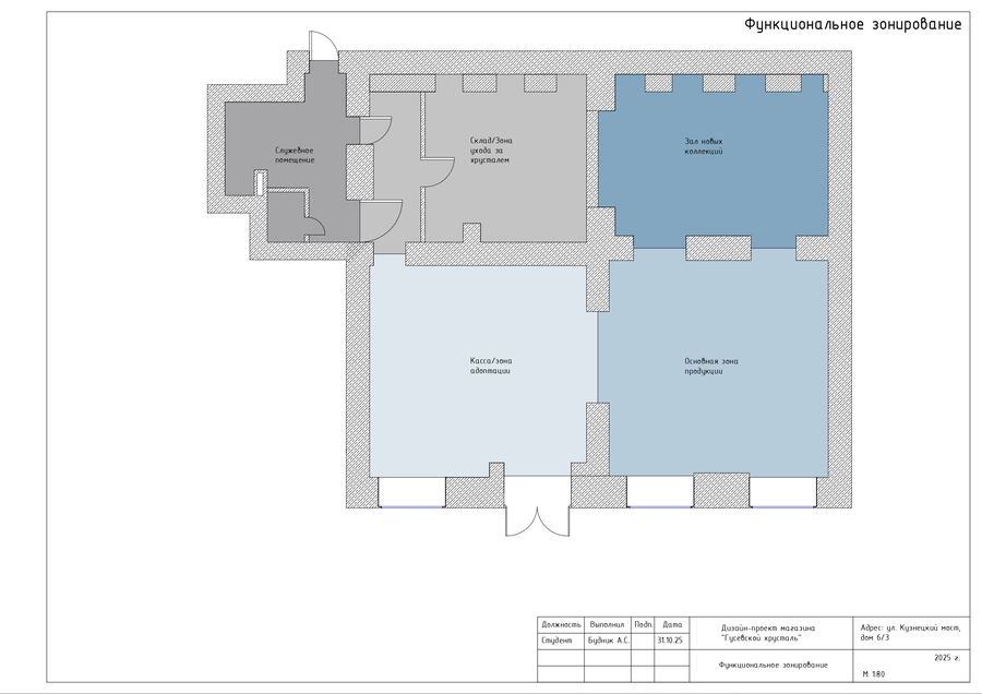
Зонирование и планировка