
Интерьер загородного дома «Tatemono», созданный для семьи, которая питает особую любовь к японской культуре, являет собой утончённое слияние традиционного японского колорита с элементами современного комфорта.

Гостиная
Гостиная просторная и функциональная, с мягкой мебелью и телевизором. Здесь семья будет проводить вечера и смотреть фильмы.


Чайная зона
Чайная зона — это место уединения и спокойствия, можно провести чайную церемонию в узком кругу.
Зона осознанности
Зона осознанности объединена с каминной зоной, что позволяет культурно и осознано проводить досуг, а также общаться с друзьями, не отвлекаясь на различные гаджеты.
Каминная зона
Обеденная зона
Обеденная зона в вечернем и дневном свете позволяет почувствовать разные состояния интерьера.
Кухня
Кухня — оборудована современной техникой и мебелью, но с элементами японской приватности. Вся техника и дополнительная рабочая поверхность прячется за фасадами кухонного гарнитура.
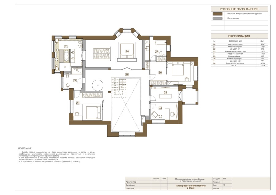
Мастер-спальня
Мастер-спальня — уютная и комфортная, с мотивом традиционной японской кровати-футон и зоной для хранения одежды.
Мастер-санузел
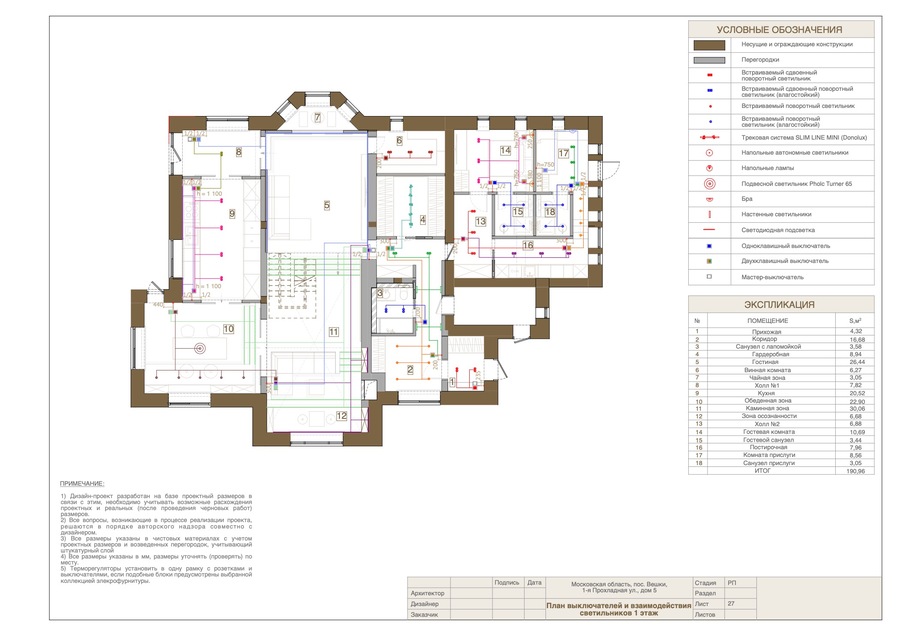
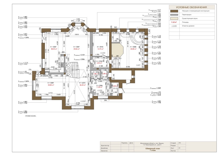
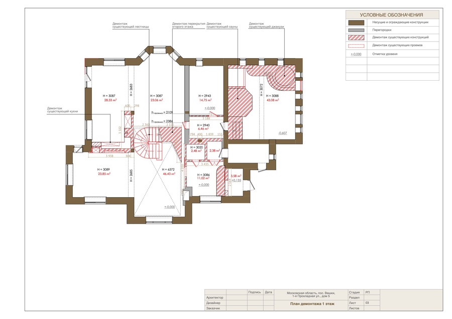
Техническая документация
Техническая документация 1-го этажа
Техническая документация 2-го этажа