Original size 1064x1598

Практические задания по технологиям дизайна

PROTECT STATUS: not protected
9

Введение

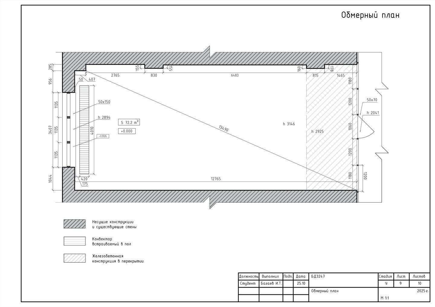
В проекте представлены учебные чертежи, выполненные в течение первого модуля в программе AutoCAD по дисциплине «Специальные технологии».

Геометрические фигуры и сопряжения

0

Обломы и вазы

0

Фигуры

0

Обмерные планы

0
Практические задания по технологиям дизайна
9
We use cookies to improve the operation of the HSE website and to enhance its usability. More detailed information on the use of cookies can be fou...
Show more