Жилой дом разработан для гидролога, человека, изучающего свойства распределения и движения воды на Земле, включая поверхностные и подземные воды.
Жилой дом расположен на озере Байкал, что соответствует профессии заказчика и помогает ему проводить исследования, наблюдения и анализ ближайшей акватории.

Исходный размер 3000x2142
Генеральный план и фасады

Исходный размер 3000x2142
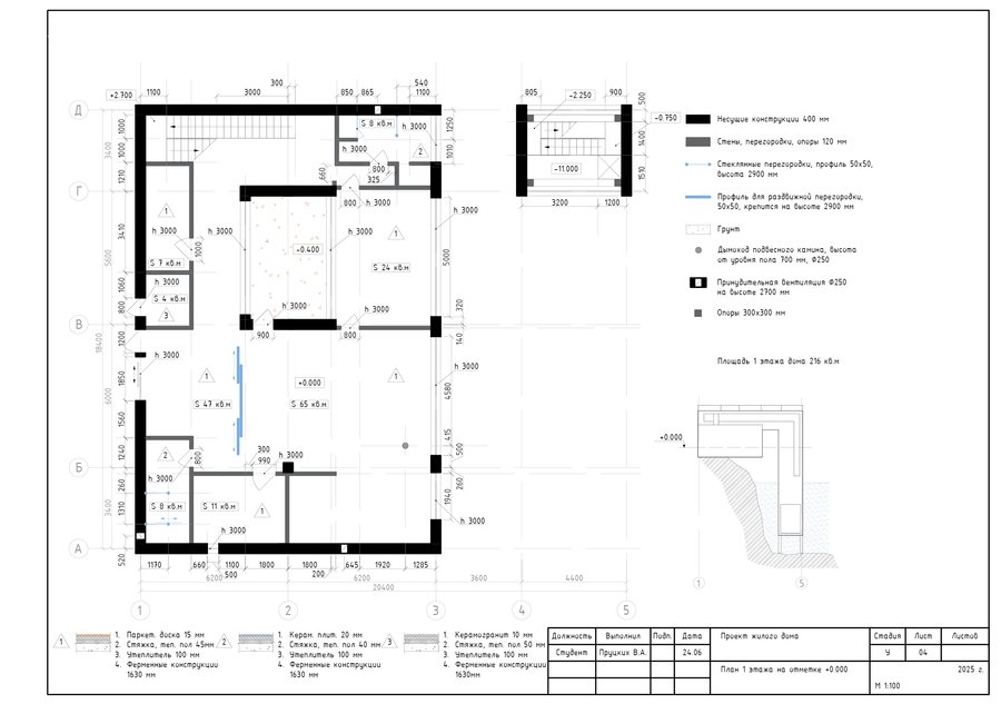
Отличительные черты гидрологии, отраженные в интерьере в сочетании с лабораторной деятельностью: скалистая поверхность подземных вод, лаконичность форм, контрастность.

Исходный размер 3000x2142
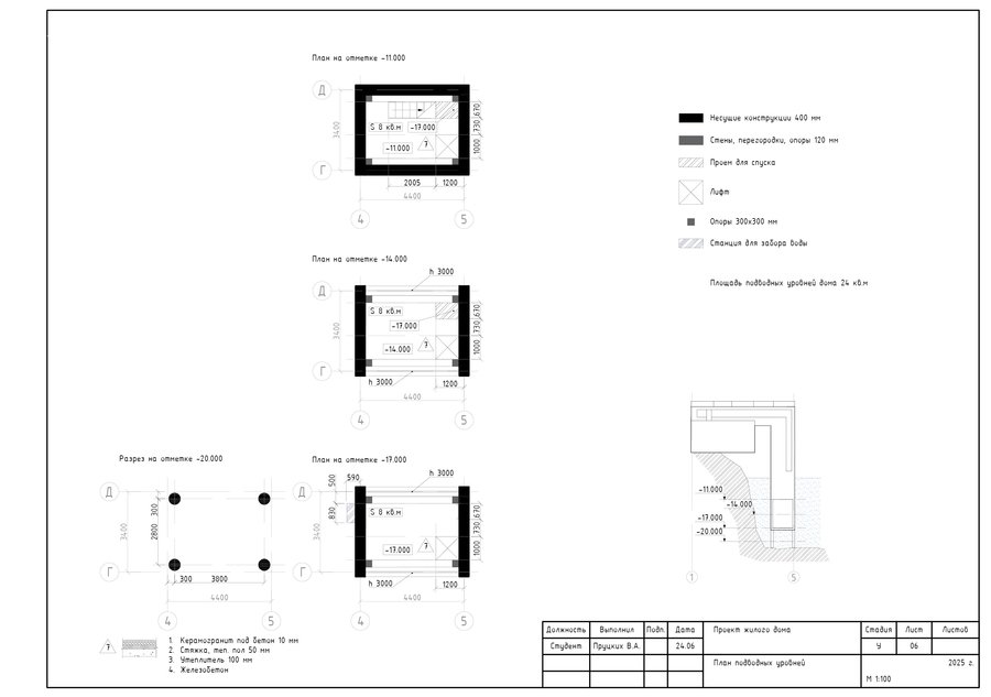
Планы этажей
Исходный размер 3000x2142




