
Местоположение частного дома
Заказчик и техническое задание
Концепция
Гармония человека и природы: дом, где стирается грань между наблюдателем и наблюдаемым, где жизнь человека естественным образом переплетается с жизнью птиц, Это не просто дом. Здесь каждая стена — рамка для пейзажа, а крыша — открытое небо для тех, кто учится слушать
Взрыв схема
План участка
Вид с севера
Частный дом
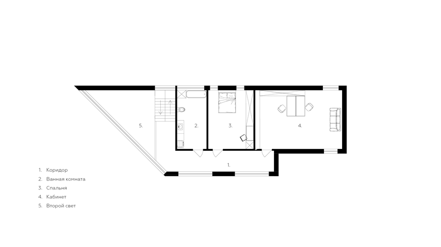
План 1 этажа
Северный фасад
Визуализации
Сопутствующие постройки
Звукозапись и медитация
Лазарет для птиц
Смотровая вышка
Визуализации интерьера