Технический проект санузла жилого дома
Жилой дом, разработан в прошлом учебном модуле и расположен на озере Байкал, что соответствует профессии заказчика гидрогеолога, основной деятельностью которого является изучение свойств распределения и движения воды на Земле, включая поверхностные и подземные воды.
Дом находится по адресу: п. Листвянка, ул. Горького (146)
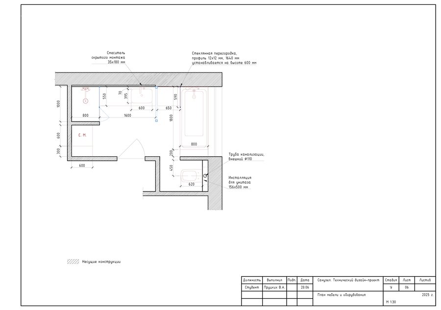
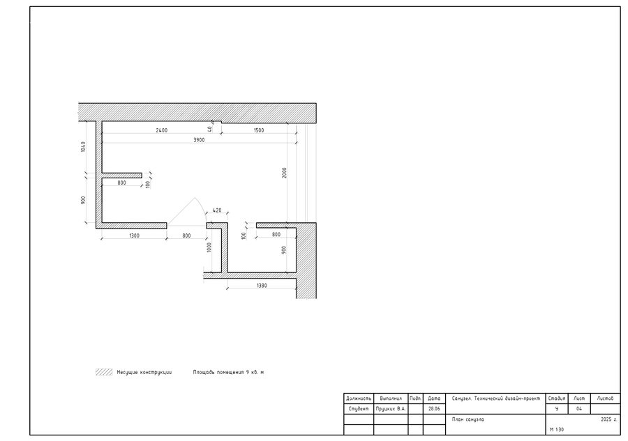
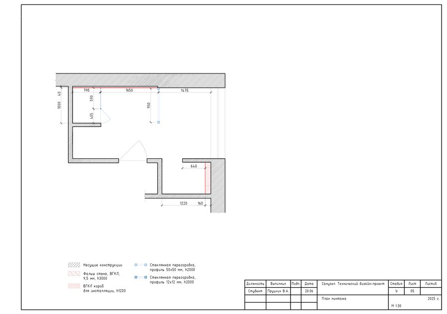
Обмерный план План монтажа План мебели и оборудования
Аксонометрии пространства
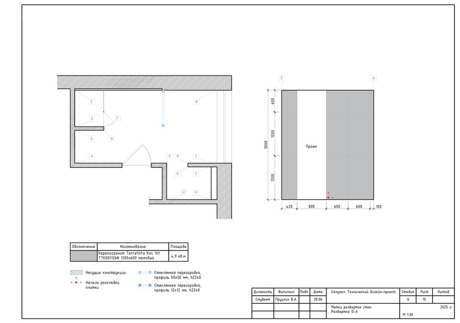
Развертки стен












