Дом памяти
This project is a student project at the School of Design or a research project at the School of Design. This project is not commercial and serves educational purposes
big

ДОМ ПАМЯТИ

post

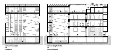
Это пространство нельзя назвать одним словом «музей», это действительно целый «дом памяти», где находится исторический архив, выставочное пространство, офисы итальянских ассоциаций борцов за демократию. «Дом памяти» находится в Милане и открыл свои двери в 2015 году. Архитектурой здания занималось студия baukuh.

big
Original size 864x1080

Смещение этажей, Окно как символ | Дом памяти

Паттерн: Окно как символ, Смещение этажей

Простой кирпичный куб выглядит аскетично и «заброшенно» на фоне футуристических построек вокруг. Уникальность ему придают квадратные окна разного размера, скрывающие внутреннюю организацию здания, и девятнадцать кирпичных мозаик на фасаде, изображающих безымянные портреты миланских жителей, чередующихся с историческими событиями, например, освобождение концентрационных лагерей, теракт на миланской площади Фонтана [1]. Здание — метафора коллективной памяти: сложенной по крупицам, местами забытой и утраченной.

Мозаика | Дом памяти

Внутри Дом памяти, разделенный на архив, выставочные залы и офисы культурных ассоциаций, объединённые центральным объектом — винтовой жёлтой лестницей — словно стержень силы, правды и веры и одновременно тревожности.

Лестница | Дом памяти

Bibliography
1.

Дом памяти в Милане // Architectural Digest URL: https://www.admagazine.ru/architecture/dom-pamyati-v-milane (дата обращения: 01.10.2025).

Image sources
1.

House Of Memory // baukuh URL: https://www.baukuh.it/works/house-of-memory/ (дата обращения: 01.10.2025).

Chapter:
13
14
15
16
17
We use cookies to improve the operation of the HSE website and to enhance its usability. More detailed information on the use of cookies can be fou...
Show more