
Дизайн-проект шоурума для бренда украшений «Moonswoon»
Moonswoon — бренд аккуратных, минималистичных украшений, отображающих чистые, классические формы в современной интерпретации. Бренд имеет свой интернет магазин и несколько шоурумов, находящихся в Москве и Екатеринбурге. Для бренда важно создавать качественные и красивые изделия и «сделать как можно больше людей счастливыми и нарядными."©

Украшения бренда «Moonswoon»
Moonswoon образовано от двух слов: «moon» (с англ. «луна») и «swoon» («обморок»). Moonswoon можно перевести как «полнолуние, от которого захватывает дыхание».

Существующие интерьеры шоурумов бренда

Незабудка — маскот бренда
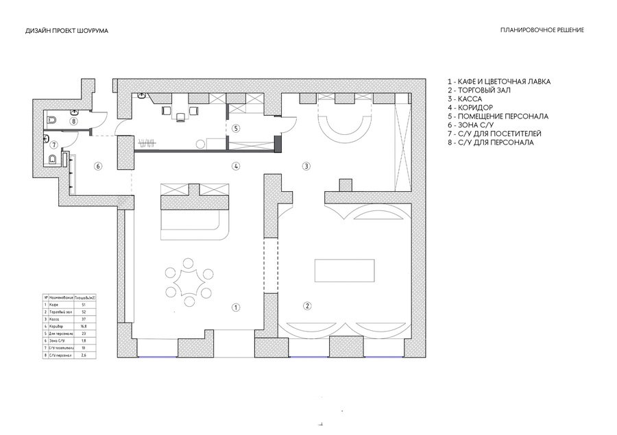
Техническая часть
Визуализации








Витрина